Stadt Lychen
Lichtschloss im Dornröschenschlaf
Wer möchte dieses besondere Bauwerk "wachküssen"? Die ehemalige Gesamtschule in Lychen ist ein offenes und helles Gebäude. Aufgrund der schönen Lichtsituation in den meisten Räumen hatten die letzten Nutzer:innen es Lichtschloss genannt. Seit 2010 steht es leider leer. Die Stadt Lychen sucht engagierte Menschen, die diese Immobilie für sich und die Stadt zu einem lebendigen Ort reaktivieren wollen. Das Haus bietet viele Möglichkeiten zum Wohnen und Arbeiten sowie für Kultur und Bildung. Lasst eurer Fantasie freien Lauf! Die Stadt möchte im Rahmen eines Konzeptverfahrens eine passende Gruppe und das Gebäude für eine kreative Projektentwicklung zusammenbringen. Im ersten Schritt wird eine Interessenbekundung erwartet.
Einsendungsfrist für die Interessensbekundung verlängert auf den 4. Juni 2026!
Konzeptverfahren?
In unserer Publikation Zukunft statt Leerstand erfahrt ihr praxisnah, was es mit dem Vergabefahren auf sich hat.
Die Flößerstadt Lychen (3028 EW) liegt zwischen sieben Seen und schier endlosen Wäldern mitten im Naturpark Uckermärkische Seen. Die Eiszeit hat hier sanfte Hügel und tiefe Seen hinterlassen, so dass Sport, Freizeit und Erholung direkt vor der Haustür beginnen - ob beim Wandern, Kanufahren, Baden, Segeln, Radfahren, Joggen oder Segeln. Lychen hat eine mehr als 100-jährige Geschichte als Sehnsuchtsort. Schon in den 1920er-Jahren begann hier der Tourismus, den man damals noch „Sommerfrische" nannte. Die stündliche Zugverbindung vom 12 Kilometer entfernten Fürstenberg/Havel nach Berlin (50 Minuten nach Gesundbrunnen) sorgt für eine gute Anbindung in den Metropolraum.

Foto: Dirk De Buhr
Abb. Stadt Lychen
Das Gebäude liegt an der Weinbergstraße im Süden von Lychen, im Stadtteil Hohenlychen, auf einer leichten Anhöhe. Hier beginnen direkt die weitläufigen Wiesen und Wälder. Von hier aus gelangt man in etwas mehr als einem Kilometer Entfernung relativ schnell an den Großen Lychensee (Strandbad) oder an die Badestelle am Zenssee. Die Innenstadt ist ebenfalls ca. 1 Kilometer entfernt, der nächste Supermarkt 500 Meter.
Interessensbekundung für gemeinwohlorientierten Nutzungsmix
Die ehemalige denkmalgeschütze Schule bietet großes Potenzial für eine innovative, gemeinwohlorientierte Nachnutzung. Im Fokus der Stadt steht die Entwicklung zu einem gemeinschaftlichen Wohn- und Arbeitsort. Bei der Vergabe wird eine gemeinwohlorientierte Nutzung und/oder eine Nutzung, die das soziokulturelle Angebot der Stadt Lychen erweitert, bevorzugt. Im ersten Schritt bitten wir die Bewerber, ihr Interesse an dem Projekt in einer einfachen Interessensbekundung an die Stadt zu richten.
Im weiteren Verlauf werden alle geeigneten Interessierten gebeten, ein ausgearbeitetes Konzept mit einem realistischen Businessplan einzureichen. Die Stadt wählt das beste Konzept aus und bietet daraufhin das Gebäude mit einem Erbbaurechtsvertrag an, unter der Bedingung, dass innerhalb von drei Jahren mit der Umsetzung des Konzepts begonnen wird und die neuen Nutzer ihren zukünftigen Erstwohnsitz in Lychen haben.

Foto: Martin Hansen, zum Vollbild klicken

Foto: Martin Hansen

Foto: Martin Hansen

Foto: Martin Hansen
Foto: Martin Hansen, zum Vollbild klicken
Foto: Martin Hansen
Foto: Martin Hansen
Foto: Martin Hansen

Foto: Martin Hansen, zum Vollbild klicken

Foto: Martin Hansen

Foto: Martin Hansen

Foto: Martin Hansen
Foto: Martin Hansen, zum Vollbild klicken
Foto: Martin Hansen
Foto: Martin Hansen
Foto: Martin Hansen
Habt Mut!
Der Stadt Lychen ist eine fruchtbare und kooperative Zusammenarbeit wichtig. Die Verwaltung wird die Bewerbenden vor allem bei baurechtlichen Fragen tatkräftig unterstützen. Außerdem kann sie auf das Netzwerk Zukunftsorte mit seinem umfassenden Erfahrungswissen zurückgreifen. Im Gegenzug erwartet die Stadt von den Bewerber:innen einen Ansatz, der die Stadtgesellschaft bereichert.

Foto: Martin Hansen
Gebäudezustand
Das solide Gebäude ist aus fabrikgefertigten Betonelementen errichtet und gehört zu dem Typ „Erfurt", einer speziell für Schulen in der DDR entwickelten Gebäudeart. Das 1980 fertiggestellte Gebäude wurde 1999 renoviert und weist augenscheinlich keine schweren Baumängel auf. Größere Vandalismusschäden gibt es nicht, aufgrund guter Beaufsichtigung der Stadt. Auch das Dach wurde gut unterhalten und ist bis auf wenige kleine Stellen dicht. Die Betonwände neigen bei einem solchen Gebäude zum Schwitzen, wenn es nicht mehr beheizt wird. Da in jedem Raum aber die ganze Zeit Fenster zum Lüften offen standen, hat sich kein schwerwiegender Schimmel gebildet. Die Fenster haben keine Isolierverglasung nach heutigem Standard. Alle Außentüren sind ebenfalls in einem schlechten Zustand. Alle Installationsleitungen für Heizung, Wasser und Elektrik entsprechen nicht mehr dem heutigen Standard. Um das Gebäude wieder nutzen zu können, muss es grundsaniert werden. Der Denkmalschutz bedeutet für die Sanierung, dass in erster Linie die Fassaden erhalten bleiben müssen.
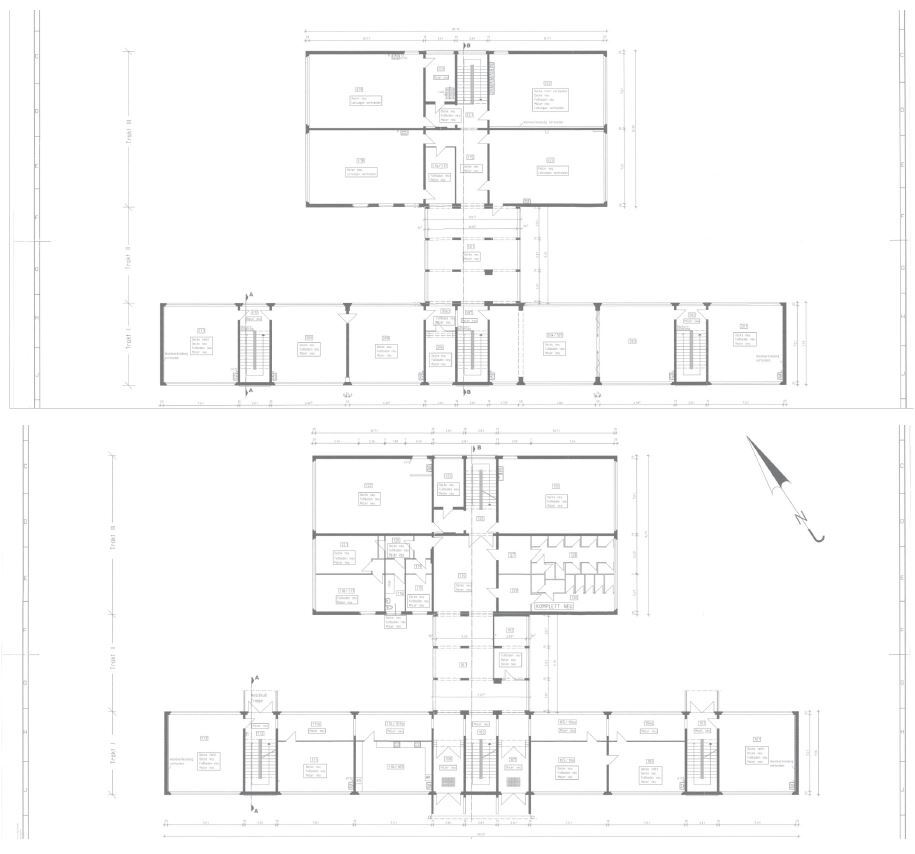
Abb. Grundrisse: Stadt Lychen, zum Vollbild klicken
Anforderungen und Zeitplan
In der Interessensbekundung solltet ihr auf folgende Punkte eingehen:
- Angabe zur Gruppe
- Angaben zum Konzept/soziale Komponenten
- Rechtliche und finanzielle Komponenten
Voraussichtliche Termine und Fristen:
- Veröffentlichung des Exposé
- Infocall "Gebäude sucht Nutzung" am 16. März 26
- Ortsbesichtigung auf Anfrage
- Einsendeschluss Interessensbekundung ist der 4. Juni 26
- Juni 26 Workshop mit allen ausgewählten Bewerber vor Ort in Lychen
- Ende September 26 Abgabe der vertieften Konzepte
- Ende November 26 Zuschlag durch die Stadt
Veranstaltungen
Aufzeichnung zum Meetup vom 16. März 26
Erfahrt im Meetup jede Menge insides über die Immobilie und die seenreiche Region Lychen.
Martin Hansen gibt Auskunft über das Objekt und das Prozedere der Interessensbekundung.



