Der Bahnhof Beeskow
Tor zur Niederlausitz
Was der Landkreis Oder-Spree neben Kiefernwäldern, Flüssen und Seen zu bieten hat? Zum Beispiel ein top saniertes historisches Bahnhofsgebäude in der schönen Spreestadt Beeskow.
Nachdem die Stadt das ehemalige Empfangsgebäude erworben und dank Förderung in den letzten Jahren denkmalgerecht instand setzte, sind die gemeinschaftstauglichen Räumlichkeiten startklar für Impulse und Nutzer*innen mit gemeinwohlorientierten Angeboten für Willkommenskultur und Stadtgesellschaft.
Im Bahnhof könnt ihr für günstige Kondition mit euren Unternehmungs- und Gründungsideen für gastronomisches Angebot, Nahversorgung, Regionale Angebote, Bildung, Soziales, Gesundheitsversorgung sowie Kunst und Kultur das Gebäude erobern und für frischen Wirbel in Ort und Region sorgen.
Unsere Vision: ein neuer WIR Raum für Beeskow!

Test- und Zwischennutzungen?
Sind ausdrücklich vorstellbar. Die Stadt wünscht sich allerdings ein selbstständiges und gemeinschaftliches Agieren im Komplex.
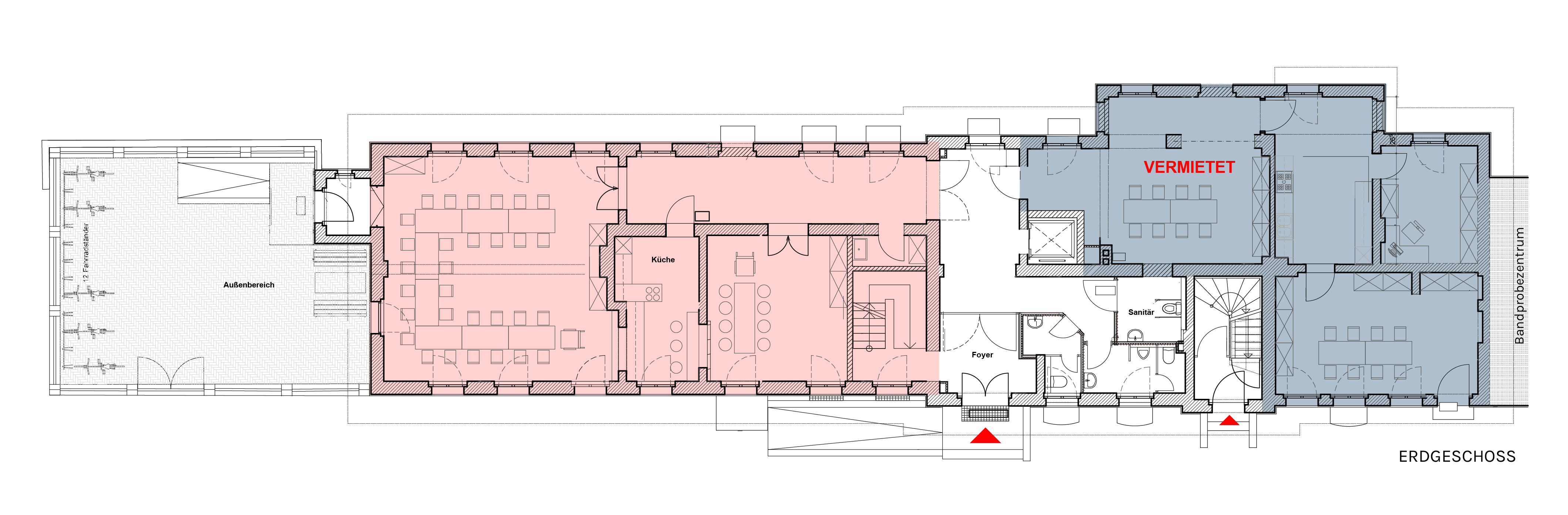
Im Hauptgebäude werden im EG bereits Flächen durch eine Ankermieterin genutzt. Das ehemalige Lagergebäude nebenan beherbergt ein soziokulturelles Bandprobezentrum.
Klein oder groß? Wie ihr es braucht: Die verfügbaren Einheiten im Erd-, Ober- und Dachgeschoss können als Ganzes oder einzeln gemietet werden.
Gebäude sucht Nutzung #02: Willkommensort Bahnhof Beeskow
Di 02.09.25 | 16.00 - 17.00 Uhr | digital
Wo bekommt man das beste Vanilleeis Deutschlands? In der schönen niederlausitzer Kleinstadt Beeskow!
Aber Beeskow hat noch viel mehr zu bieten. Kerstin Müller & Janine Griesche von der Stadt Beeskow und laden euch im Video in die Stadt und vor allem das historische Bahnhofsgebäude ein, das für neue innovative Nutzer:innen offen steht.

Neue Impulse im Bahnhofsquartier

Nicht nur im Bahnhof selbst stehen die Zeiger auf Zukunft, auch das Umfeld entwickelt sich zu einem lebenswerten Stadtquartier. Die Aufwertung des Vorplatzes mit Bushalt, der Neubau eines großen Spielplatzes, des Skaterparkes, die Entwicklung des nahen Schulstandortes Fontaneschule, der neue Kitabau und der Umbau eines benachbarten Wohnblocks zu modernen Mietwohnungen spricht künftig für den sehr attraktiven und kinderfreundlichen Standort.
Die Spreestadt selbst hat eine spannenden Mischung aus Tradition und Innovation zu bieten. Die kulturell genutzte Burg, die historische Altstadt und das urige Begegnungszentrum Hüfnerhaus treffen hier auf Innovationen wie das geplante Incubator Village auf der Spreeinsel oder die Sonae Arauco Beeskow GmbH.

Neuer Spielplatz in Reichweite | Bild: Stadt Beeskow

Neuer Skaterpark | Bild: Stadt Beeskow
Einheiten im Erdgeschoss

Im Erdgeschoß eröffnet sich der große alten Wartesaal (61 qm) mit Zugang zum Außenbereich und angeschlossener Küche (13 qm), ideal für gastronomische oder Veranstaltungsnutzung. Ein weiterer großer heller Raum (24) befindet sich entlang des großzügigen Flur in in Nähe des Foyers und Treppenaufgang.
Verfügbar ab Januar 2026.

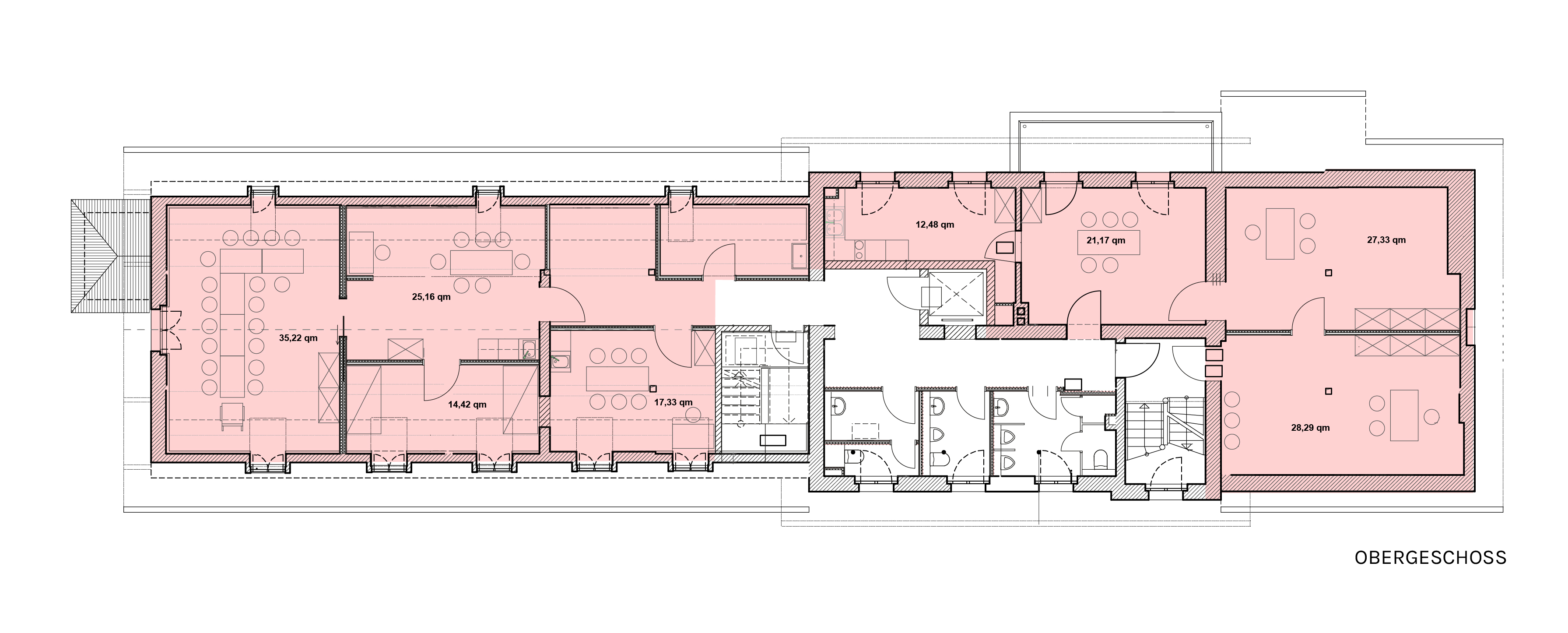
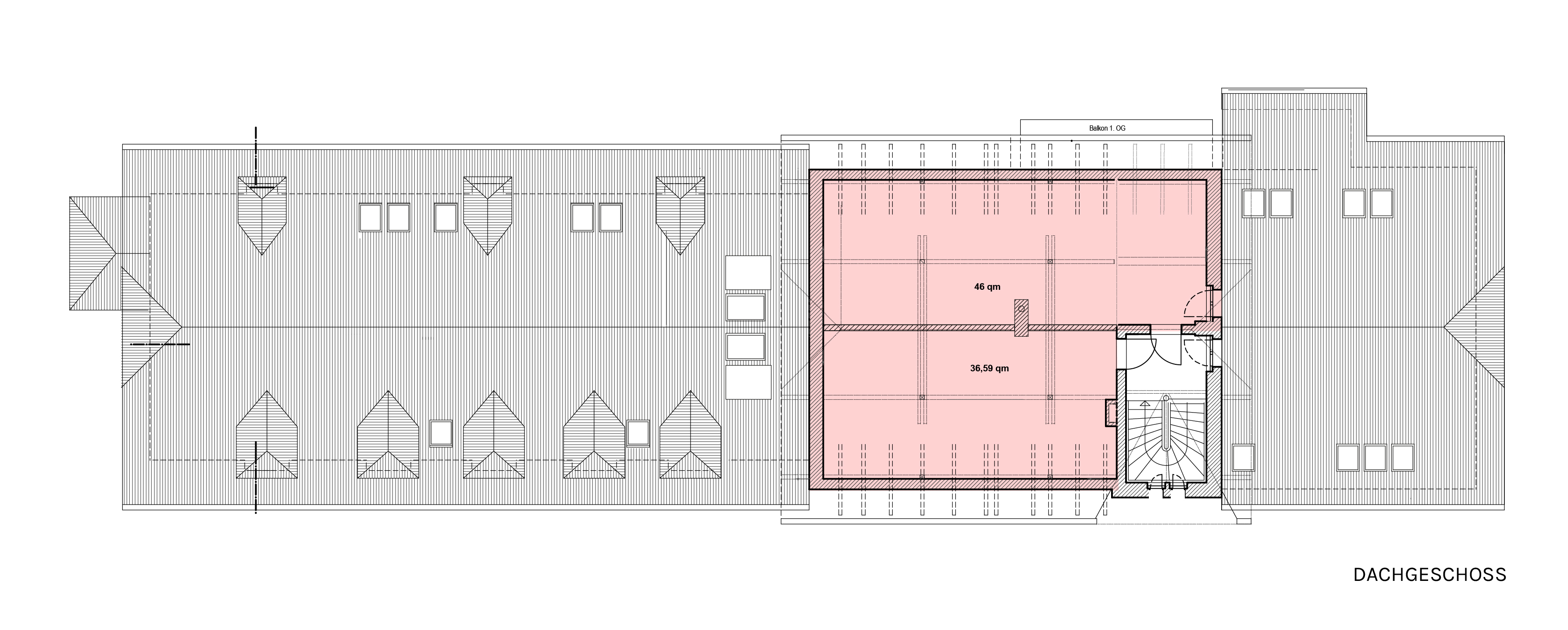
Einheiten im Ober- und Dachgeschoss






Das Obergeschoss, barrierefrei erschließbar, verfügt im linken Gebäudeteil über 4 Räume zwischen 14 - 35 qm (1 Durchgangszimmer) und einen geräumigen Flurbereich. Verfügbar ab Januar 2026.
Der rechte Gebäudeteil mit eigenem Treppenaufgang verfügt über 4 Räume zwischen 12 - 28 qm (1 Durchgangszimmer. Das ausgebaute Dachgeschoss bietet euch schöne große Raumeinheiten von 37 qm und 46 qm. Verfügbar ab sofort.
Grundrisse

Erdgeschoss | Abb. NZO

Obergeschoss | Abb. NZO

Dachgeschoss | Abb. NZO

Erdgeschoss | Abb. NZO

Obergeschoss | Abb. NZO

Dachgeschoss | Abb. NZO


